ads/auto.txt

Manual Antena G7 Vhf

Manual De Instalacion Antena G 7 Vhf

Manual De Instalacion Antena G 7 Vhf

Manual De Instalacion Antena Hustler Collinear Modelo G 6 Vhf

Manual De Instalacion Antena Hustler Collinear Modelo G 6 Vhf

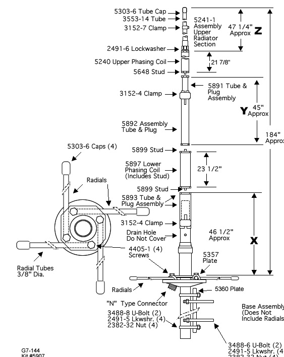
Antena G7 Vhf Manual Pdf Antenna Radio Electrical Connector

Antena G7 Vhf Manual Pdf Antenna Radio Electrical Connector

Rapi Lokal 4 Bekasi Manual Instalasi Antenna Hustler G 7

Rapi Lokal 4 Bekasi Manual Instalasi Antenna Hustler G 7

Rigpix Database Schematics Manuals N Stuff

Rigpix Database Schematics Manuals N Stuff

Antenna Diamond Youtube

Antenna Diamond Youtube

Antenna Diamond Youtube

Kapasitas gede bahan kwalitas pilihan kuat dan rapi antena g7 g9 2 000 3 000 watt antena telex trex trlex dobel trex antena berkwalitas dengan kapasitas.

Manual antena g7 vhf. La antena de radio hustler g7 de alto rendimiento es una antena vertical de 15 pies 4 5 m de altura comúnmente utilizada por los radioaficionados. 259 connector because the connector on the antenna is an n type. Projec kita kali ini adalah cara membuat antena hutsler jowo harjo lengkap dengan rumusnya yang di pakai untuk radio komunikasi terutama pada band vhf yang memang sangat banyak penggemarnya untuk menumbuhkan kreatifitas para breakermania sering para pengurus organisasi radio baik rapi ataupun orari atau komunitas radio yang lain mengadakan lomba membuat antena dengan kriteria penilaian dari. Tiene dos metros de largo y está hecha de aluminio y fibra de vidrio para mantener correctamente el funcionamiento de la antena y proporcionar una.

Hustler base model g7 144 vertical antennas feature a 7 dbd maximum effective omni directional gain. Recursos g 7 tabla de ajuste g7 manual g7 150 series specs pdf. Icom ic706mk2g hf vhf uhf terjual kaltim hf vhf uhf all mode transceiver icom ic 706mk2g versi usa kelengkapan. G7 antenna cutting chart this is the cutting chart for g7 antenna for those looking.

Antena base vhf rango de 148 154 mhz 7 db de ganancia. Acceder a mi cuenta. I just uploaded it here for reference for those people that want to adjust their g7 antenna to other frequencies as stated in the manual. Due to robust manufacture harsh environments do not affect their mechanical or signal integrity.

Antena g7 g9 vhf atau g7 fm kapasitas 1 000 2 000 3 000 watt antena telex trex trlex dobel trex antena berkwalitas dengan kapasitas yg gede 1000 2 00. The g7 144 utilizes a 5 8 wave lower 5 8 middle 5 8 upper collinear radiator which has been spaced for optimum low angle radiation. Hand mic hm103 kabel dc buku manual dan box semua original no seri sama. Providing a consistent pattern even in marginal areas.

Para obtener su password por. Extremely low angle stacked 5 8 wave radiators deliver superior gain. 3 minggu yang.

Making First Loading Coils For G7 G9 2m Youtube

Making First Loading Coils For G7 G9 2m Youtube

10654620 2 Way Portable Radio User Manual Vertex Standard Usa

10654620 2 Way Portable Radio User Manual Vertex Standard Usa

Dep450 Detailed Lacr Service Manual Soldering Solder

Dep450 Detailed Lacr Service Manual Soldering Solder

Jrc Jhs180 Ais Installation Manual Compass Antenna Radio

Jrc Jhs180 Ais Installation Manual Compass Antenna Radio

T1088a 800 Rf Modular User Manual Users Manual Technisonic Industries

T1088a 800 Rf Modular User Manual Users Manual Technisonic Industries

9zwfm8900s Gmdss Vhf User Manual Furuno Usa

9zwfm8900s Gmdss Vhf User Manual Furuno Usa

42lg710hua Lcd Tv Monitor User Manual User S Manual G Lg

42lg710hua Lcd Tv Monitor User Manual User S Manual G Lg

Hustler Antenna At Dx Engineering

Hustler Antenna At Dx Engineering

Tr 0031 E Vhf Mastr Iii Base Station Paging User Manual

Tr 0031 E Vhf Mastr Iii Base Station Paging User Manual

Yaesu Ft 8100 User Manual Pdf

Yaesu Ft 8100 User Manual Pdf

Yaesu Ft 857 Service Manual Iw2nmx

Yaesu Ft 857 Service Manual Iw2nmx

Download Vertex Standard Vx 454 Service Manual For Iphone Free

Download Vertex Standard Vx 454 Service Manual For Iphone Free

Koemt Vhf Uhf Hf X Beam Antenna

Koemt Vhf Uhf Hf X Beam Antenna

Hustler Antenna G7 150 3 Commercial Base Vertical Antennas G7 150

Hustler Antenna G7 150 3 Commercial Base Vertical Antennas G7 150

Source : pinterest.com